Följ arbetet med
Projekt Baderskan
Gripsholms värdshus spa-anläggning
För Mariefredsbor är Baderskan kanske mer känd under namnet Strandrestaurangen. En vackert belägen byggnad precis invid kanten av Mälaren.
Från början av 1900-talet var byggnaden ett varmbadhus och tvättstuga där Mariefredsbor och deras tvätt skrubbades av rejäla tvättmadammer ända in på 1970-talet.
I Svenska Kulturpärlor regi är planen att namnet Strandrestaurangen byts ut till sitt ursprungliga namn som bättre hänvisar till byggnadens historia och byggnaden ska återställas till sin forna glans – välkomna till projekt Baderskan.
Projektet Baderskan innebär en omfattande renovering och omvandling av byggnaden till en spa-anläggning. Syftet är att skapa en mötesplats för både Mariefredsbor och besökare, där de kan njuta av avkoppling och social samvaro.
Renoveringen omfattar både interiör och exteriör, med fokus på att återställa byggnadens ursprungliga utseende genom att ta bort senare tillkomna delar.
Målet är att bevara byggnadens historiska värde samtidigt som den anpassas för moderna behov.
27/6 2024
Artikel i Strengnäs Tidning
Fredrik Åström ger en rundtur i lokalerna och berättar om renoveringsarbetet för Strengnäs Tidning
21/9 2023
Händelserik sommar på Baderskan
Under sommaren har Strängnäs kommun färdigställt lagningen av strandskoningen runt Baderskan samt uppfört ett nytt trädäck längs vattnet. Vi har från vår sida samtidigt utfört de inte rivningsarbeten som krävts för att framöver kunna påbörja renoveringar och utveckling av fastigheten. Nästa steg i arbetet blir att påbörja grävningar och markarbeten.
14/11 2022
Påbörjat arbete
Äntligen är vi i gång med de första ”spadtagen”. Interiört stomrensar vi fastigheten vilket innebär att vi tar bort interiöra och exteriöra komplementdelar som tillkommit sedan husets ursprungliga uppförande. Dessutom jobbar kommunen nu med att se över strandskoningen runt Baderskan och arbetar även med att renovera strandpromenaden.
29/12 2021
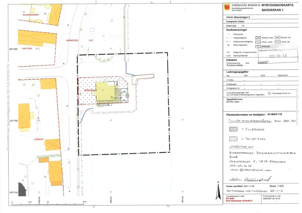
Beviljat bygglov
Bygglovet för Baderskan är nu beviljat. Vi ser nu fram mot att gå vidare i processen för att skapa ett spa i den gamla Strandrestaurangen i Mariefred. Det betyder alltså att byggnaden återgår till den glans som den hade i början av 1900-talet då Baderskan var ett varmbadhus.
Vi utlovar en plats för långväga gäster som vill koppla av i vår vackra stad och – inte minst – för alla spa-sugna Mariefredsbor!
Läs mer i artikeln i Strängnäs tidning.
1/10 2021
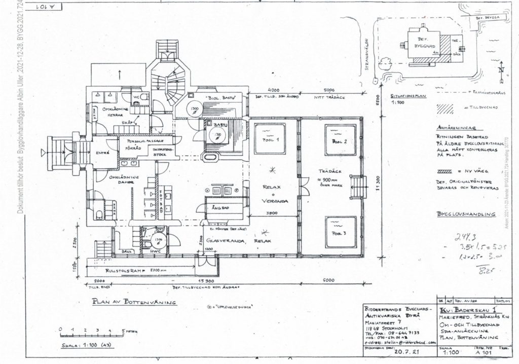
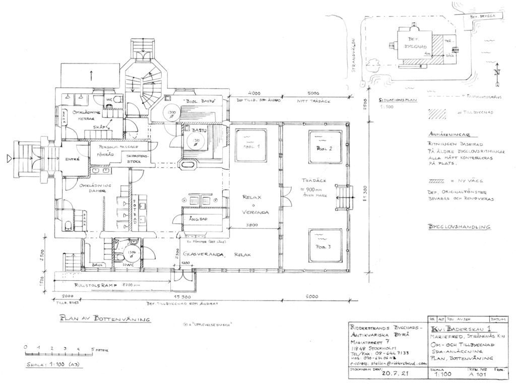
Nya byggritningar
Vi kan nu publicera de första ritningarna som lämnats in för bygglovsärendet kopplat till Baderskan. Målet är att skapa en ny typ av spa-upplevelse i klassisk miljö på ett av Mariefreds bästa lägen!
2/4 2021
Bygglovsritningar
Arbetet fortskrider med Plan- och Byggnadsnämnden och vi är nu i slutskedet med att lämna in bygglovsritningar.
6/2 2020
Detaljplanearbetet får påbörjas
Kommunen tog igår beslut om att detaljplanearbetet får påbörjas. Vi kommer ställa ut för samråd efter sommaren då vi också presenterar fullständiga planer.
23/10 2019
Detaljplanearbetet är signerat
Nu har vi signerat detaljplaneavtalet och Strängnäs kommun kan därmed påbörja arbetet med en ny detaljplan för Baderskan.
12/9 2019
Summering inför hösten
Det har gått lite mer en ett års tid sedan projektet med Baderskan drog igång. Under året har Strängnäs kommun bett oss föra en dialog med Sörmlands museum och Länsstyrelsen där vi fått positiva reaktioner på vårt förslag. För en vecka sedan hade vi ett uppföljningsmöte med Samhällsbyggnadskontoret som kommer påbörja arbetet med detaljplaneförändringar under hösten. Vi har en god dialog med samtliga parter och är hoppfulla om att under senhösten kunna meddela hur arbetet går vidare.
20/5 2019
Diskussioner förs
Vi för diskussioner med Sörmlands museum och Strängnäs kommun kring utvecklingsmöjligheterna av fastigheten, med förhoppning om att detaljplanearbete kan påbörjas under hösten.
20/6 2018
Inväntar detaljplan
Kommun arbetar för närvarande med detaljplanen för området. Vi inväntar att detaljplanen ska slutföras och vinna laga kraft.
8/5 2018
Nycklarna överlämnade
Det var ett stort pådrag och många nyfikna människor fanns på plats, när vi besökte Baderskan efter att vi fått nycklarna överlämnade. Vi har säkrat upp in- och utvändigt för att det inte ska bli fler inbrott och mer skadegörelse samt täckt för alla fönster och röjt lite i trädgården. Nu kommer huset få stå lite vinterbonat tills vi är klara med detaljplaner och annat. Vi har stora planer!
Kika gärna på en intervju med Fredrik Åström och Johanna Battaroff i Strängnäs Tidning.
5/5 2018
Svenska Kulturpärlor utökar
Nu står det klart att vi på Svenska Kulturpärlor köper Strandrestaurangen i Mariefred. Vår VD Fredrik Åström räknar med att det kommer ta cirka fyra år innan Strandrestaurangen är färdig för att tas i bruk.
23/3 2018
Kommunstyrelsen beslutar!
Idag tog kommunstyrelsen beslutet att även markköpet går igenom. Därefter finns det en fyraveckors period för eventuella överklaganden. Efter det kan vi påbörja vårt arbete!
17/3 2018
Köpare och säljare överens!
Glädjande nyheter! Nu är priset för fastigheten Baderskan beslutat och köpeavtalet undertecknat. Detta avtal är skrivet med bolaget Smock förvaltning AB. Köpet går dock bara igenom om kommunen även bestämmer sig för att sälja marken som huset står på.
Läs mer i Strängnäs Tidning!
1/3 2018
Svenska Kulturpärlor planerar att utöka sin verksamhet
Svenska Kulturpärlor planerar att köpa Strandrestaurangen i Mariefred.